Nieuw
Ref: 2577
6 foto’s photo
Nieuw
Ref: 2577

€ 79.500

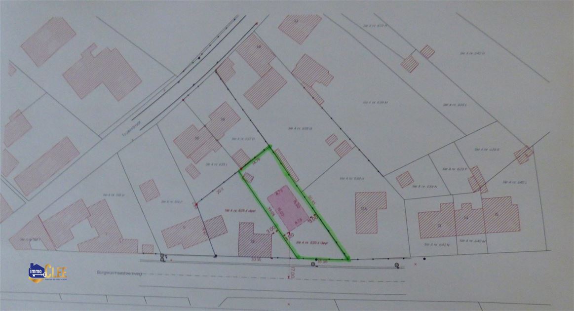
Bouwgrond open bebouwing op 6a 59ca

Borgwormsesteenweg , 3891 MIELEN-BOVEN-AALST
Toon op kaart Verberg kaart

Over dit pand

Bouwgrond voor open bebouwing te koop  6a 59ca in Mielen-boven-Aalst

 

Op een landelijke ligging in Mielen-boven-Aalst vindt u deze mooie bouwgrond van 6a 59ca, geschikt voor open bebouwing.

Het perceel heeft een straatbreedte van 15 meter en laat toe om een woning te realiseren met een gevelbreedte van 8,75 meter.

 

Deze bouwgrond biedt een ideale basis voor wie droomt van een ruime gezinswoning met tuin, in een groene en aangename omgeving. Winkels, scholen en verbindingswegen bevinden zich op korte afstand, met een vlotte bereikbaarheid.

 

Troeven:

- Oppervlakte perceel: 6a 59ca

- Geschikt voor open bebouwing

- Straatbreedte: 15 meter

- Max. gevelbreedte: 8,75 meter

- Landelijke ligging in Mielen-boven-Aalst

- Goede bereikbaarheid en nabijheid van voorzieningen

 

Een ideale plek om uw woondroom te realiseren!


Panddetails

icon Gemiddelde perceelsbreedte 18 m
icon Gemiddelde perceelsdiepte 50 m
icon Oppervlakte terrein 659 m²
icon Tuin Nee
icon Terras Nee
icon Type bebouwing Open
icon Verwarming Niet meegedeeld
icon Dak Niet meegedeeld
icon Keuken Niet meegedeeld
icon Zolder Nee
icon Kelder Nee
icon Lift Nee

icon Energieprestatiecertificaat (EPC) Score + Label kWh/m² -
icon Verwarmings systeem Niet meegedeeld

icon Eigendom verhuurd Nee

icon Dagvaarding & Herstelvordering Geen rechterlijke herstelmaatregel of bestuurlijke maatregel opgelegd
icon Kadastrale oppervlakte 659
icon Meest recente stedenbouwkundige bestemming Woongebied met landelijk karakter
icon Stedenbouwkundige vergunning uitgereikt Nee
icon Overstromingsgevoelig Nee
icon Afgebakend overstromingsgevoelig Nee
icon Risicozone voor overstroming Nee
icon Afgebakende oeverzone Nee
icon Erfdienstbaarheden en beschrijving Geen

Kadastraal_uittreksel_Borgwormsesteenweg_Mielen-1 - zn.pdf
Kadastraal uittreksel
Bereken uw aflossing